
京急線 追浜 1階

| 物件番号 | 25107133 |
|---|---|
| 所在地 | 神奈川県横須賀市追浜町3丁目14-2 |
| 建物名 | 浜勇ビル |
| 路線/駅/徒歩 |
京急線追浜駅 徒歩2分 |
| 物件階数 | 1階 |
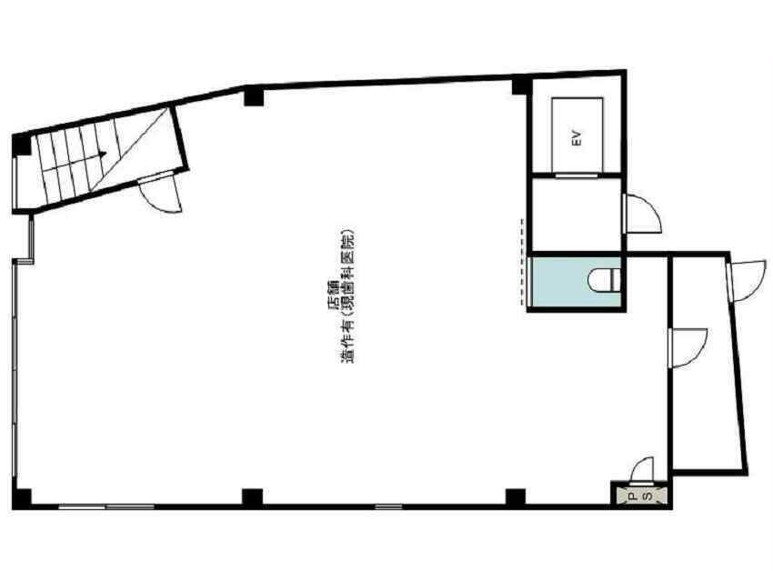
| 面積 | 約 29.41坪 |
| 賃料 | 427,777円 |
| 敷金 | 3,000,000円 |
| 礼金 | 1ヶ月 |
| 契約期間 | 3年 |
| 更新料 | 1ヶ月 |
| 契約形態 | 普通借家 |
| その他 | 歯科医院営業中 現況渡し 引渡時期2026年1月中旬 飲食等何業相談 テナント保険必須 保証会社必須 1995年12月築 |
平面図

付帯条件や別途料金等が発生する場合もありますので当社担当までご確認ください。


